MZOSE陌森极简门系列资料 链接地址:

02 陌森极简门—移门隔断系列
文件格式:DWG等,AutoCAD电脑都可打开
如需高定轻奢品牌木作图纸请上『整木图纸站』:www.gdtuzhi.com
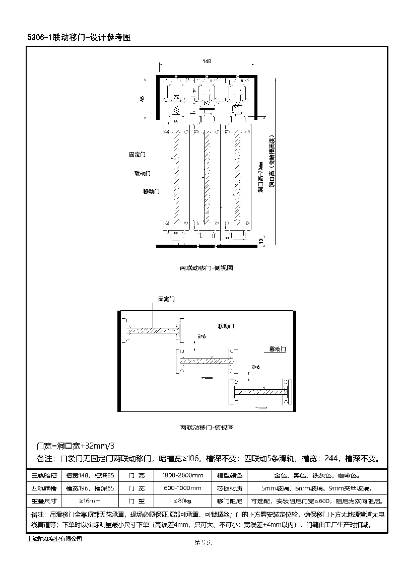
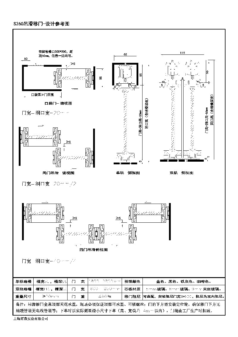
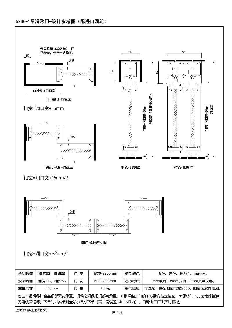
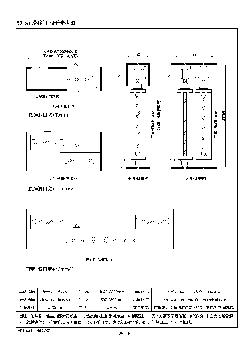
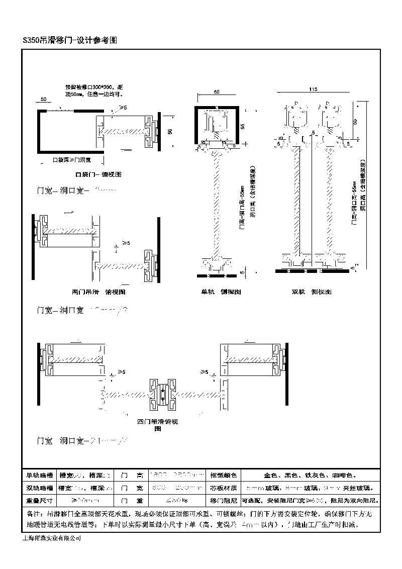
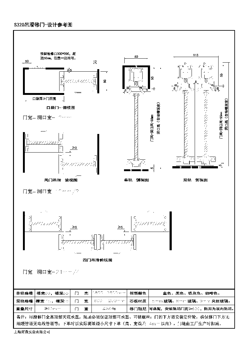
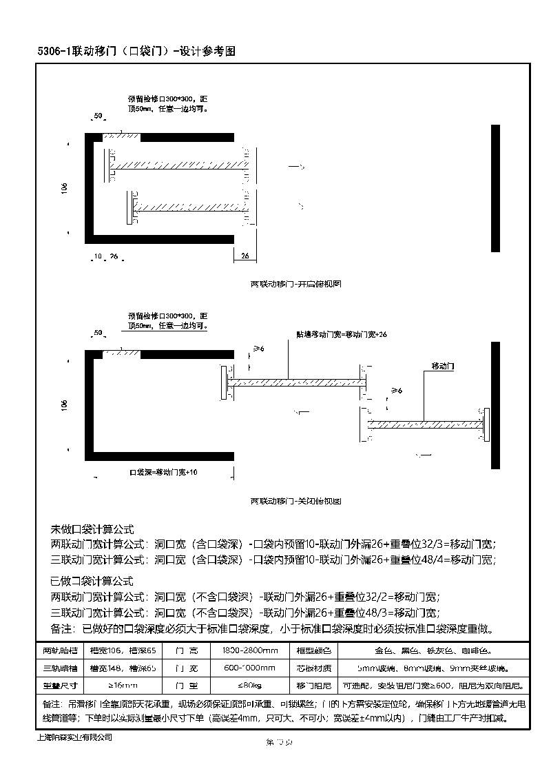
02 陌森极简门—移门隔断系列截图展示

版面有限,只展示前面一小部分文件资料!
如何购买
扫微信二维码

或手动加老李微信:ligongts
图纸版权免责声明:
本网站家具图纸皆属于原公司版权所有,本网站不承担任何责任。如有侵权,请联系我们做删除处理!整木图纸资源仅供学习与参考,请勿用于商业用途,否则产生的一切后果将由您自己承担!
购买流程
1.了解图纸
2.在线咨询
3.支付费用
4.获得图纸
02 陌森极简门—移门隔断系列
发布者:高定图纸联盟 浏览:867- 上一篇:01 陌森极简门—铝框门板系列
- 下一篇:03 陌森极简门—衣帽系统系列
