⑥ 淮安 整木展厅专卖店(施工图+拆单图)
容量大小:930 MB 格式:主打DWG格式
有偿分享价:19.99 元 加老李 微信:ligongts (备注:专卖店展厅图纸)
淮安店 截图

1、施工原图(蓝图)

淮安旗舰店装饰施工图
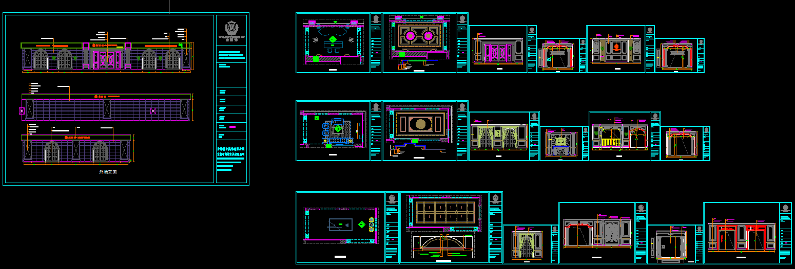
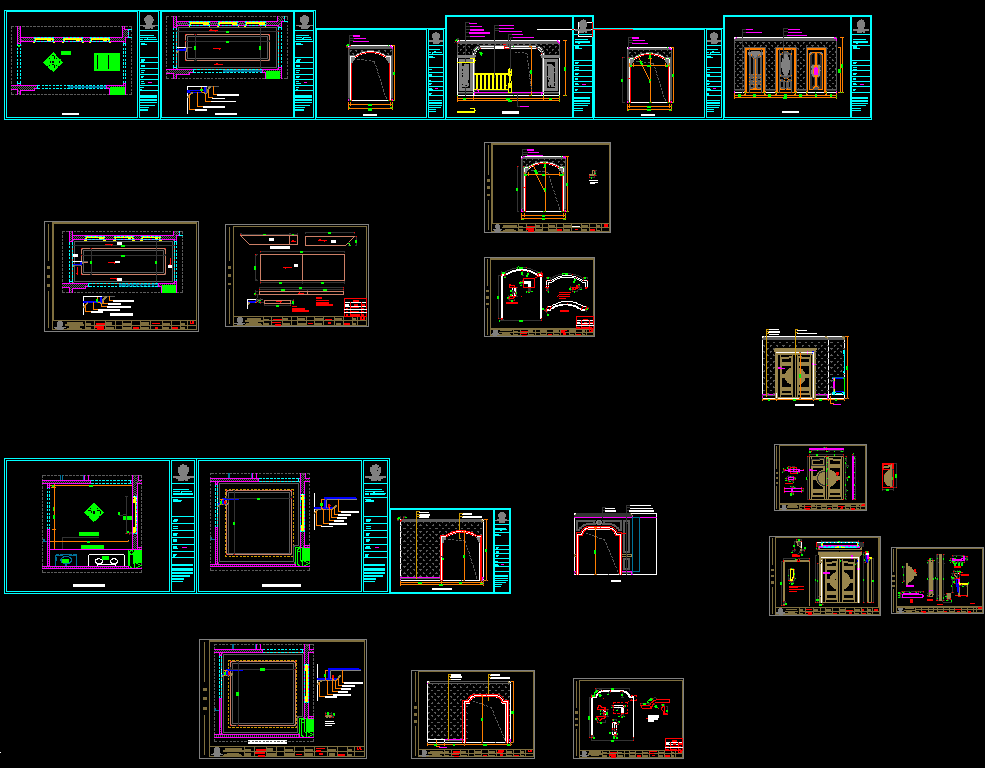
平面图部分

立面图部分



淮安店 拆单图

前台拆单



门展区拆单

淮安店厨柜



其他的拆单图不再截图了。
淮安店厨柜五金表

淮安店店内照片

举例



别急还有报价清单


报价清单很长,截图只是展示一点点。
喜欢的设计大佬可以买一份做为参考也不错。
⑥ 淮安 整木展厅专卖店(施工图+拆单图)
容量大小:930 MB 格式:主打DWG格式
有偿分享价:19.99 元 加老李 微信:ligongts (备注:专卖店展厅图纸)
淮安店 截图

1、施工原图(蓝图)

淮安旗舰店装饰施工图
平面图部分

立面图部分



淮安店 拆单图

前台拆单



门展区拆单

淮安店厨柜



其他的拆单图不再截图了。
淮安店厨柜五金表

淮安店店内照片

举例



别急还有报价清单


报价清单很长,截图只是展示一点点。
喜欢的设计大佬可以买一份做为参考也不错。
购图加李工微信:duuong123 加微信请注明来意
作者:李工,70后,北京人,现工作在深圳。从业二十余年资深高定家具设计师,乐于整理高定木作课程及高定定制图纸资源,高定图纸联盟发起者,业余专注一线高定极简定制设计行业图纸资料及教程对接。
微信扫一扫,加李工微信沟通!