⑫ 太原 整木展厅专卖店(施工图+拆单图)
容量大小:690 MB 格式:主打DWG格式
有偿分享价:19.99 元 加老李 微信:ligongts (备注:专卖店展厅图纸)
太原店 截图

1、施工原图(蓝图)

太原旗舰店装饰施工图
平面图部分


立面图部分

客厅区、前台区、多功能区

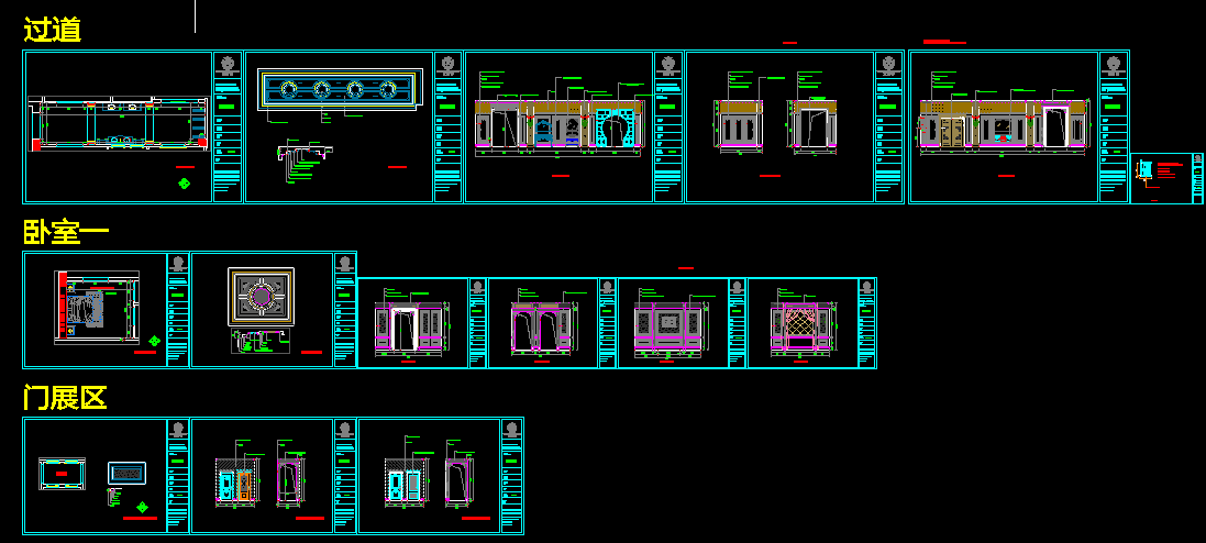
过道、卧室一、门展区

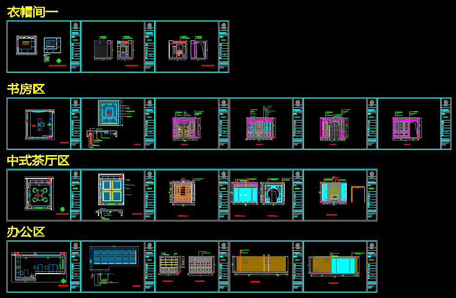
衣帽间一、书房区、中式茶厅区、办公区

厨房区、餐厅区、吧台区、酒窖区

起居室、卧室二、衣帽间二

生产拆单图

吧台区拆单
A立面拆单

B立面拆单

C立面拆单

D立面拆单

办公室区拆单
天花拆单

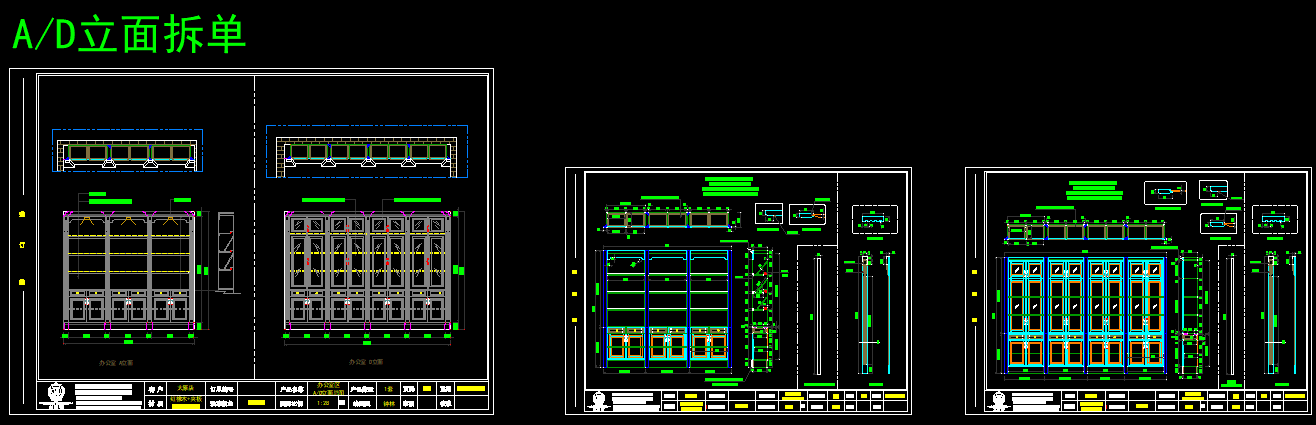
A/D立面拆单

办公室区五金

其他比如:餐厅、卧室区、衣帽间等等拆单不再一一截图展示。
附太原旗舰店上百张高清照片

举例



说明:没有报价表
喜欢的设计大佬可以买一份做为参考也不错。
