27、橱柜、木门、衣柜专业技术规范知识
(介绍衣柜衣帽间类设计 书柜酒柜电视柜阳台柜隔断柜榻榻米等成品柜设计 移门设计 测量沟通技巧 设计案例 防错设计 色彩搭配 风水学)
格式:PPT,DCO
有偿分享价:5 元 请加老李微信:ligongts 付款后,索要资料。 (备注:整木培训资料)
文件截图

橱柜专业技术规范知识截图

基础培训截图

木门专业技术规范知识截图

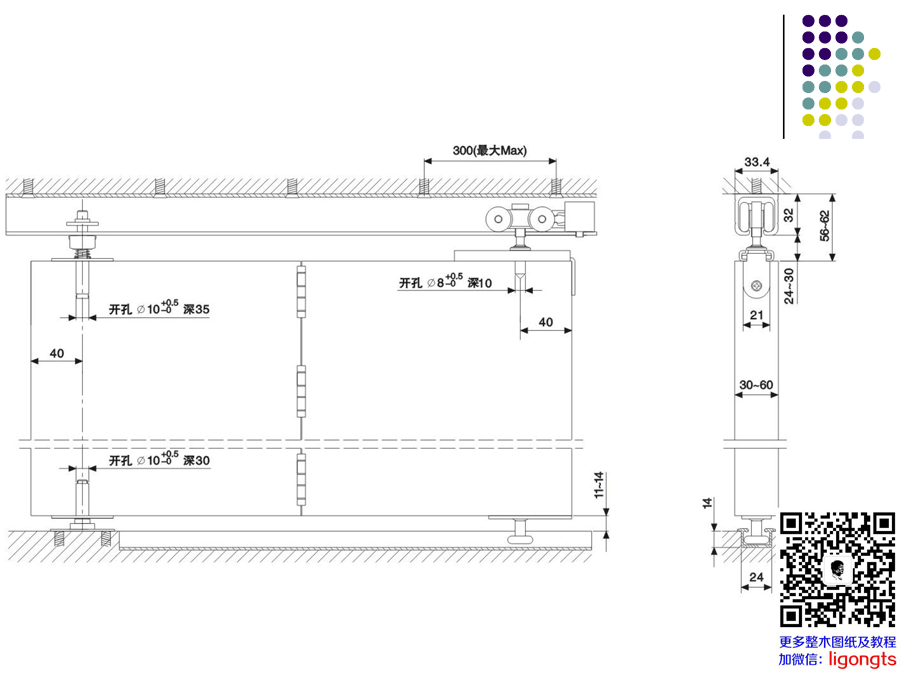
衣柜专业技术规范知识截图

木门尺寸计算知识培训截图











不只截图这么一点点,这里不再一一截图展示了。
有兴趣的设计大师可以买一份做参考也不错................
