《高定图纸站》独家:高定产品系统化设计SU标准体系(配套CAD图纸)

老李(X7)-P系列书柜标准图:SU模型,文件格式:skp,SketchUp2018软件可打开
-P系列书柜标准图.png)
老李(X7)-P系列书柜标准图:《配套CAD图纸》,文件格式:Dwg,AutoCAD2007软件以上版本可打开

老李(X7)-P系列书柜标准图:1#P书柜 SU模型,文件格式:skp,SketchUp2018软件可打开

老李(X7)-P系列书柜标准图:1#P书柜 《配套CAD图纸》,文件格式:Dwg,AutoCAD2007软件以上版本可打开


老李(X7)-P系列书柜标准图:2#P书柜 SU模型,文件格式:skp,SketchUp2018软件可打开

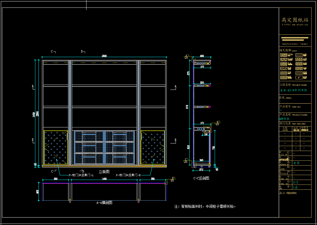
老李(X7)-P系列书柜标准图:2#P书柜《配套CAD图纸》,文件格式:Dwg,AutoCAD2007软件以上版本可打开


老李(X7)-P系列书柜标准图:3#P书柜 SU模型,文件格式:skp,SketchUp2018软件可打开

老李(X7)-P系列书柜标准图:3#P书柜《配套CAD图纸》,文件格式:Dwg,AutoCAD2007软件以上版本可打开

老李(X7)-P系列书柜标准图:4#P书柜 SU模型,文件格式:skp,SketchUp2018软件可打开

老李(X7)-P系列书柜标准图:4#P书柜《配套CAD图纸》,文件格式:Dwg,AutoCAD2007软件以上版本可打开

老李(X7)-P系列书柜标准图:5#P书柜 SU模型,文件格式:skp,SketchUp2018软件可打开

老李(X7)-P系列书柜标准图:5#P书柜《配套CAD图纸》,文件格式:Dwg,AutoCAD2007软件以上版本可打开

老李(X7)-P系列书柜标准图:6#P书柜 SU模型,文件格式:skp,SketchUp2018软件可打开

老李(X7)-P系列书柜标准图:6#P书柜《配套CAD图纸》,文件格式:Dwg,AutoCAD2007软件以上版本可打开

老李(X7)-P系列书柜标准图:7#P书柜 SU模型,文件格式:skp,SketchUp2018软件可打开

老李(X7)-P系列书柜标准图:7#P书柜《配套CAD图纸》,文件格式:Dwg,AutoCAD2007软件以上版本可打开

老李(X7)-P系列书柜标准图:8#P书柜 SU模型,文件格式:skp,SketchUp2018软件可打开

老李(X7)-P系列书柜标准图:8#P书柜《配套CAD图纸》,文件格式:Dwg,AutoCAD2007软件以上版本可打开

老李(X7)-P系列书柜标准图:9#P书柜 SU模型,文件格式:skp,SketchUp2018软件可打开

老李(X7)-P系列书柜标准图:9#P书柜《配套CAD图纸》,文件格式:Dwg,AutoCAD2007软件以上版本可打开

老李(X7)-P系列书柜标准图:细节 SU模型,文件格式:skp,SketchUp2018软件可打开

老李(X7)-P系列书柜标准图:细节《配套CAD图纸》,文件格式:Dwg,AutoCAD2007软件以上版本可打开

版面有限,只展示前面一小部分文件资料!
老李-X7-P系列书柜技术说明
1、标准书柜按尺寸分共有9种,宽度尺寸分别为3100mm、2800mm、2500mm,高度尺寸分别为2420mm、2620mm、2965mm;
2、柜门配萨郦奇AIR天地阻尼铰链,抽屉配隐藏式托底轨;
3、柜门可更改为无拉手的型材柜门,柜门的产品名称分别为P-柜门1#皮革门-L, P-柜门1#皮革门-R;图纸详见《2020年图森-X7-P系列部件类标准图》;需安装海福乐的明装反弹器以及吸片(现场安装)或自行选购反弹装置:海福乐反弹器的产品名称为海福乐M-PUSH反弹器,型号为356.05.142;海福乐吸片的产品名称为海福乐M-PUSH吸片,型号为246.03.790;
4、图纸中标注面料、水性仿真皮和真皮的部位,下单时需要在图纸中标注对应材质色板的编号;
5、柜门需配“乐思柜门无线红外感应器”,安装于柜门上方的顶板,用于控制柜内灯具的开关。
《高定图纸站》独家:高定产品系统化SU标准体系(配套CAD图纸)
容量:947 MB,有偿学习价仅需:¥269
资料分享的收入主要用于购买原厂家的图纸资料,图纸资料每年都会更新,感谢您的购买与支持!
如何购买
扫微信二维码

购买请加李工微信:duuong123
